Collaboration with GBCAA

Project Info

  • Construction Date

    March 2015-2016

  • Category

    Collaborations

Collaboration in Madrid


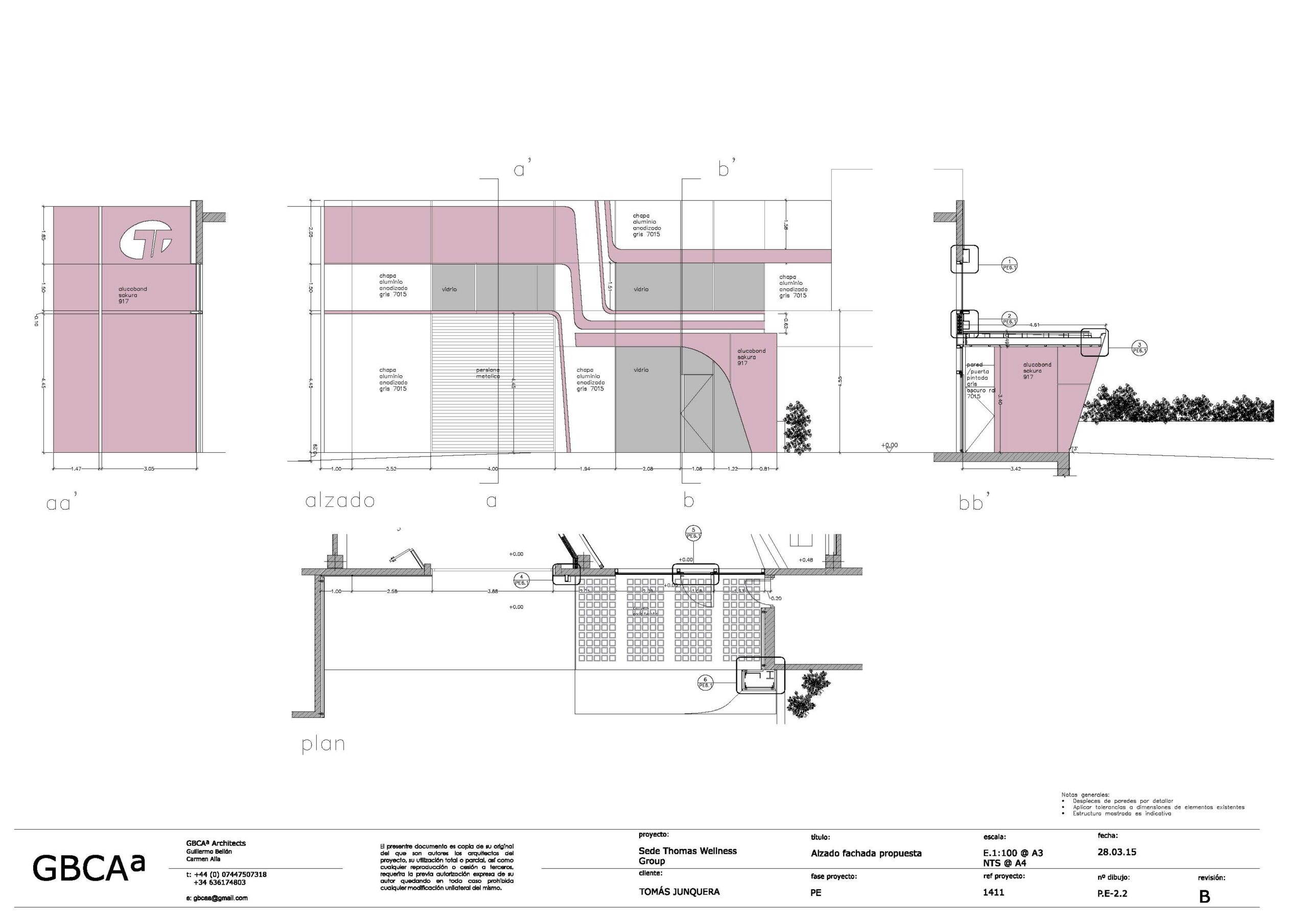
In 2015, the Spanish London based studio GBCAA approached us to collaborate in 2 big warehouse refurbishments.

The projects consisted in creating office, showroom and gym areas for both customers and employees . Flare architecture collaborated in the technical aspect of the project, making sure all the details worked together as well as all the selected materials.

Unfortunately the client decided not to build any of the project for economic reasons but he was very happy with the design and our work.